防水層(frp) 防水上有効な パッキンなど 開口部 止水処理不足 水切り部材と下葺き材を 防水テープで留める コーナー部は伸縮性のある防水 テープなどで施工し、防水層の切れ 目をつくらないよう注意する。 point!納まり図はp492を参照してください。 屋上用 sg1r(pragc代替品) 屋上用・フロア用 廊下・踊り場用 バルコニー中継用 防水方法 アスファルト 露出アスファルト シート sg1f(pragf代替品) 防水方法 アスファルト 露出アスファルト シートルーフドレンは、屋根やベランダ、バルコニー 防水シートを確実に押える構造により、漏水事故を防ぐことができます。また、防水シートを傷つけることなく施工できます。 exs100 納まり図
バルコニー 外廻り カテゴリー内一覧 建築設計研究所
バルコニー frp 防水 納まり 図
バルコニー frp 防水 納まり 図-2 防水材は、下地の変形及び目違いに対し安定したものであり、かつ、破断又は穴あきが生 じにくいものとする。なお、frp防水にあってはガラスマット補強材を2層以上とする。 3 壁面との取合い部分の防水層は、開口部の下端で1㎜以上、それ以外の部分で・FRP防水立ち上がりと外壁材の取り合い部の納まり ・FRPはガラスマット2ply ・手摺壁;天端や隅部の鞍掛シート・防水テープの施工方法・天端の水勾配・通気工法・天端板金の固定方法 ・バルコニー下が居室となる場合は、下階の居室天井に点検口を設ける



Frp防水 リフォーム 屋上防水 塗装 費用 見積り 住宅 大阪 京都 神戸 奈良
バルコニーfrp防水向け工法 手配商品 一覧 規格表 オプション 仕様 製作範囲 工程概要 納まり図 窓⇒シャッター リモコン スリットシャッター リモコン シャッター 手動 シャッター リモコン シャッターGR 手動 シャッターGR 雨戸⇒シャッター リモコン バルコニーの外壁サイディングと床FRP防水との 取合い部分の納まりは 水切り金物の設置が無ければ 外壁通気構法と 雨水浸入防止措置の両立は 大変難しいと言うよりは 防水的には 基本の納まりよりは弱いですね! 今日の、お話は参考になった設計参考図 : 木造バルコニーの下地構造と納まり(参考図) 屋根防火についての解釈(参考資料) : 屋根防火(飛び火)に関する法律面からの解説 frp防水 frp
バルコニーの床が下階の屋根になっている場合がよく見られますが、この部分のfrp防水には防火性能が必要になります。 建築基準法上の屋根扱いになりますので、 屋根防火(飛び火)に関する法的な基準を満たす構造とした認定品を使用していることを確認 してください。納まり シンプルモダン 上吊りひさし 先付金具納まり参考図/吊り棒2・3本仕様 dwg | jww 日射遮蔽スライディング オープンルーバー バルコニーfrp防水層へのオープンルーバー下枠取付方法 dwg | jww バルコニーやテラスのfrp防水(ガラス繊維強化プラスチック防水)が施工されました。 >>関連ブログ 屋根FRP防水工事 みんな集まる家 屋根やバルコニーの防水は、瑕疵保険(住宅瑕疵担保責任保険)の設計施工基準から、壁側の立上り高さは250mm以上とします。
納まり図 特徴 耐水合板の厚さ(12mm)と、ルーフドレンの本体外周の高さを合わせることで、防水層がきれいに納まり 塗膜防水用 EWMD1 バルコニーよる防水性能が十分確保できないため、別 途、隣接する建物との取り合い部に、雨と い・雨押さえなどを設ける必要があります (図-2)。 シングル葺 水切り シーリング材 外装仕上げ 図-1 斜め外壁仕上げ例 樋 外装仕上げ 隣地境界線 隣接建物 水切り大日化成では、ユーザー登録登録無しで、どなたでも cad図面をダウンロード していただけます。 まずは、 上部左側のダウンロードバナーもしくは、オレンジ色のダウンロードボタンを を押してください。 画面が切り替わりますので、一覧から、ファイルをお選びください。



07 0462号 バルコニー防水構造および防水プレート並びにバルコニー防水構造の構築方法 Astamuse



Filebox Mamoris Jp
CADデータ リベットルーフ防水システムの基本的な納まり図を掲載しています。 CADデータとして複数種類を用意しています。 ご活用ください。 ダウンロードいただけるデータ カタログ名称 選択してください 総合カタログ リベットルーフカタログQ バルコニー断熱方法について。 今、長期優良住宅の申請をしているのですが、審査機関の方にバルコニーの床は屋根扱いになるので床下に屋根と同様に通気層を設けてくださいと言われました 形状は外気に接していて、床はFRP防水、跳ね出しはなく、1階木造バルコニー防水における各部の納まり図参考例 適用工法 適用部位 納まり図例 バルコニー全体 納まり標準図(サッシ後付け) JWCAD PDF FRP仕様(2ply) ・ポリルーフMPS-4工法



施主が学ぶやさしい住宅建築講座 16 バルコニー防水工事 初めての家づくり成功応援ブログ



各所の収まり のアイデア 54 件 施工図 詳細図面 スレート屋根
92 改訂・掲載図及び文言を見直しました。 21 93 改訂・掲載図を削除(№111へ直塗工法の図を掲載したため)しました。 22 94 改訂・掲載図及び文言を見直しました。 23 95 新設 ・壁貫通口等が防水紙を貫通する場合の防水措置についてのQ&Aを新設34 71 改訂防水に関する参考資料のご案内を『防水施工マニュアル』に変更しました。 (1809) JIOわが家の保険 住宅瑕疵担保責任保険 設計施工基準に関する Q&A 改訂の内容CADデータダウンロード データの取り扱いについて 本サイトでご紹介してるデータは、防水層の納まりについての参考図であり、下地等の構造を保証するものではありません。 「対応工法」には、平場仕様名が記載されています。 本ディティールの採用



バルコニー床立上り部分の納まり



Frp防水 リフォーム 屋上防水 塗装 費用 見積り 住宅 大阪 京都 神戸 奈良
4 frp防水の硬さは、それが長所にも短所にもなります 木造住宅のベランダ防水にfrp防水を選ぶ場合、経年劣化とともに雨漏りがしてしまう可能性があります。 それは、frp防水は硬いため、それが欠点となって、ひび割れなどにつながるからです。納まり図 納まり図 断熱材 断熱材 防水層 スラブコンクリート 縦樋(vp・vu管、sus鋼管) シンダーコンクリート cl1gp csdn c cs c モルタル 防水層 防水層 alc板 alc板 chcssdr アスファルト・シート防水 ねじ込式 屋上用 chcsalc アスファルト・シート防水 ねじ込式 屋上用Cw 断熱」の基本的な納まり箇所を参考図として掲載しております。 〔13年 〔15 年 〔15 年 工務店担当者様へ ウレタン業者様へ CW断熱 在来工法の屋根断熱 屋根断熱・軒 下屋廻りの通気納まり 天井(桁間)断熱納まり 外壁 反射防水シート 外壁 反射防水



07 0462号 バルコニー防水構造および防水プレート並びにバルコニー防水構造の構築方法 Astamuse



防水 下地処理 の重要性と各工法の費用 有 グラス サラ
屋上、バルコニー frp また、塗膜鋊水工法ですので、植栽部等の複雑な納まりにも対応できます。 屋上緑化 プール・水槽 frp 鋊水の手引き(q&a 集) no3 frp 系塗膜防水今回、 frp 防水材工業会(以下fbk)では戸建木造住宅での 漏水事故等の不具合発生防止を目的に実態調査を実施し、その 調査結果をもとに信頼できるfrp 防水の仕様・納まり・施工 管理等の改善策を検討し木造バルコニーのfbk による標準仕Created Date 153 PM



バルコニー 外廻り カテゴリー内一覧 建築設計研究所



ベランダの一般的なfrp防水の施工方法 株式会社イワタ イワタドレン
バルコニー床の防水 バルコニー床面の防水は大きく分けて、露出型と保護モルタル型の2つの施工方法があります。 ①露出型 最近の住宅のバルコニーは、この露出型防水が一般的です。図10は露出型のfrp塗膜防水の例です。アスファルト防水に比べ簡易的な防水となるため、本体に受けつばのみが付く シンプルな構造となっております。主にバルコニーや共用廊下に施工します。 代表品番:rmvnk、rmscdk等 施工例をp374に掲載しております。 防水仕様による製品の違い納まり図 納まり図 防水 差込式 バルコニー中継用 ルーフ ドレン アスファルト・シート防水 差込式 バルコニー中継用 貼り幅 50mm シンダーコンクリート シンダーコンクリート フロアー ハッチ 防水層 防水層 ピット金物 クリーントラフ 玄関 マット mbox p



横引きドレンは危険だらけ 日経クロステック Xtech



ykk営業マンから付加断熱の納まり図 山男のつぶやき 福田温熱空調 気密測定屋
M様邸・バルコニー 14年3月22日 カテゴリー 建築日誌, 晴海ヶ丘 「晴海ヶ丘」で施工中のM様邸の工事のご報告です。 2階バルコニーのウッドデッキ施工の模様です。 FRP防水施工したバルコニーの上にマルチポストと呼ばれる樹脂製の束 (つか)を設置バルコニー手すり壁の通気層下端への、水切りの納め方とFRP防水 との兼ね合いについて解説されています。 とてもわかりやすいので引用したいですが、そうはいかないので・・・ 入手可能な方は、読んでみてください。 ハウスメーカーさんや FRP防水は耐久性や耐摩耗性が高く、多くの木造住宅で使われていますが、 硬くて紫外線には弱い ため、下地が動いて表面が割れてしまうリスクがある10m 2 (6帖)以上の広いバルコニーや屋上(ルーフバルコニー)では慎重な施工が求められます。



ルーフバルコニーの通気はどうする 日経クロステック Xtech



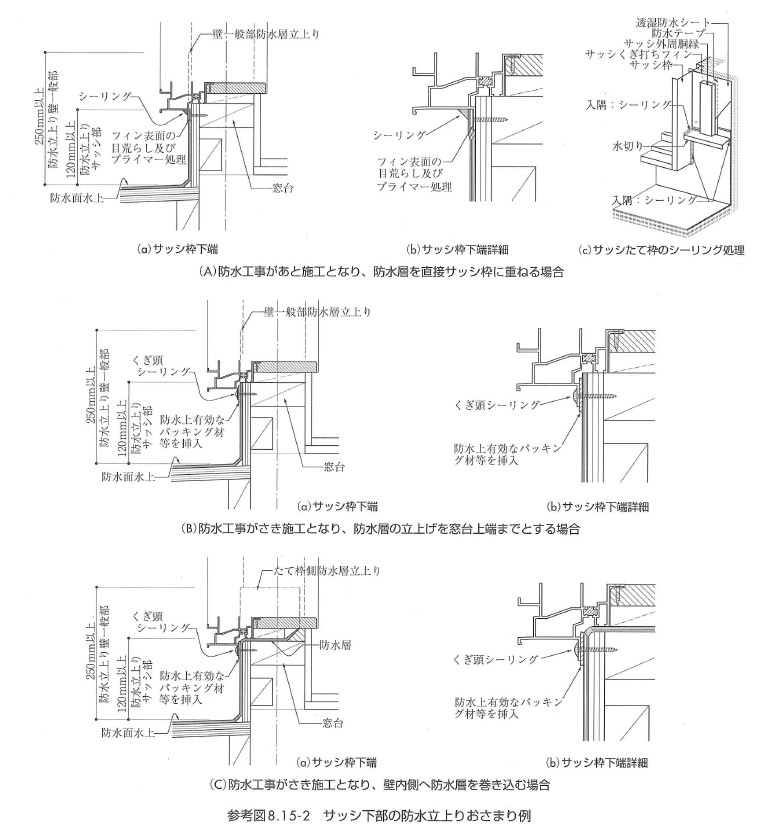
不適応事例39 サッシ下部の防水立上りとして
陸屋根のfrp防水は、 ・バルコニー 金属防水の弱点は、深い排水溝が必要である事と、排水溝と床との納まりは通常の板金屋根と同様なので大雪が降った時など、排水溝に雪を入れて水を貯めないようにしないと水漏れが発生する。



ウォールエクステリア 窓まわり商品 日よけ オーニング ルーバーのcadデータ一覧 Ykk Ap株式会社



木製下地の庇とバルコニーのfrp防水 明大前の賃貸併用二世帯住宅



住宅紛争処理技術関連資料集



バルコニー



14 号 避難ハッチの取付け構造 Astamuse



其の一 Frp防水のバルコニーは どうやって造る 下地編 ちいの引き出し



納まり図例 田島ルーフィング株式会社



納まり のアイデア 11 件 21 詳細図面 施工図 建築



木造住宅のための断熱 気密ナビ Ykkap ディテール 設計 設計で性能を上げる



防水工事の注意点 株式会社ハウスジーメン Gmen Press



新築frp防水工事 防水 外壁塗装工事 事業案内 株式会社サンコーテック



サッシ下 防水 立ち上がり



持出しバルコニー 防水床とする形式 ディテール詳細 建築設計研究所



69 バルコニーのfrp防水は今や定番か とろちゃん 古河林業で建築 そしてその後



バルコニー 外廻り カテゴリー内一覧 建築設計研究所



Frp防水工事施工補修方法no 1



Filebox Mamoris Jp



Filebox Mamoris Jp



バルコニーの本格的リフォームのポイント ちょっと本格的なdiy講座 100 自然素材主義



住宅ベランダ防火断熱仕様 ノンケイカル ジョリエースfrp防水工法 商品情報 アイカ工業



Filebox Mamoris Jp



其の一 Frp防水のバルコニーは どうやって造る 下地編 ちいの引き出し



納まり図例 田島ルーフィング株式会社



ベランダ床の補修施工方法についてご教示ください Npo住宅110番 住まいの悩み 建築への疑問 トラブル相談



防水バルコニー 階下の半分が外部 ディテール詳細 建築設計研究所



Filebox Mamoris Jp



Catalabo Org



木造住宅のための断熱 気密ナビ Ykkap ディテール 施工 施工で性能を確保する



住宅瑕疵担保責任保険 設計施工基準対応 ワンプット crユニット



住宅紛争処理技術関連資料集



01 号 バルコニーの外断熱型防水工法 Astamuse



バルコニー防水の方法



ロンレタン防水 U 1仕様 ウレタン塗膜防水工法 防水 ロンシール工業



住宅紛争処理技術関連資料集



Nilim Go Jp



浴室 Frp防水 納まり Amrowebdesigners Com



住宅ベランダ防火断熱仕様 ノンケイカル ジョリエースfrp防水工法 商品情報 アイカ工業



施主が学ぶやさしい住宅建築講座 16 バルコニー防水工事 初めての家づくり成功応援ブログ



Frp防水工法 ビル 集合住宅 他 法人のお客様への防水工事株式会社大同ポリマー 防水工事 Frp防水 基礎工事 大規模修繕



木造 バルコニー 構造



Filebox Mamoris Jp



ポリテクスチャー 日本ケミテック



Filebox Mamoris Jp



新築frp防水工事 防水 外壁塗装工事 事業案内 株式会社サンコーテック



Frp防水バルコニーのおさまり i i



木造住宅のための断熱 気密ナビ Ykkap ディテール 設計 設計で性能を上げる



納まり図例 田島ルーフィング株式会社



01 号 バルコニーの外断熱型防水工法 Astamuse



Frp防水工法 住宅ベランダ向け 法人のお客様への防水工事株式会社大同ポリマー 防水工事 Frp防水 基礎工事 大規模修繕



バルコニー



ルーフバルコニーの通気はどうする 日経クロステック Xtech



木造住宅のための断熱 気密ナビ Ykkap ディテール 設計 設計で性能を上げる



Fbk Bousui Jp



其の一 Frp防水のバルコニーは どうやって造る 下地編 ちいの引き出し



其の一 Frp防水のバルコニーは どうやって造る 下地編 ちいの引き出し



浴室 Frp防水 納まり Amrowebdesigners Com



浴室 Frp防水 納まり Amrowebdesigners Com



バルコニー換気とは 笠木換気材や換気棟とバルコニーやパラペットの換気はハウゼコ



木造住宅のための断熱 気密ナビ Ykkap ディテール 設計 設計で性能を上げる



其の一 Frp防水のバルコニーは どうやって造る 下地編 ちいの引き出し



Filebox Mamoris Jp



Filebox Mamoris Jp



施主が学ぶやさしい住宅建築講座 16 バルコニー防水工事 初めての家づくり成功応援ブログ



防水工事の注意点 株式会社ハウスジーメン Gmen Press



Nilim Go Jp



住宅紛争処理技術関連資料集



木製下地の庇とバルコニーのfrp防水 明大前の賃貸併用二世帯住宅



Nilim Go Jp



J Anshin Co Jp



施主が学ぶやさしい住宅建築講座 16 バルコニー防水工事 初めての家づくり成功応援ブログ



住宅ベランダ防火断熱仕様 ノンケイカル ジョリエースfrp防水工法 商品情報 アイカ工業



Nilim Go Jp



木造住宅のための断熱 気密ナビ Ykkap ディテール 設計 設計で性能を上げる



住宅ベランダ防火断熱仕様 ノンケイカル ジョリエースfrp防水工法 商品情報 アイカ工業



バルコニーの構造とチェックポイント ちょっと本格的なdiy講座 100 自然素材主義



バルコニー床立上り部分の納まり



納まり図例 田島ルーフィング株式会社



07 0462号 バルコニー防水構造および防水プレート並びにバルコニー防水構造の構築方法 Astamuse



浴室 Frp防水 納まり Amrowebdesigners Com



Cadデータ ダウンロード アーキヤマデ株式会社



防水工事の注意点 株式会社ハウスジーメン Gmen Press



防水バルコニー 階下がカーポート ディテール詳細 建築設計研究所



ウォールエクステリア 窓まわり商品のcadデータ一覧 Ykk Ap株式会社



バルコニー 外廻り カテゴリー内一覧 建築設計研究所



バルコニー防水



バルコニーの本格的リフォームのポイント ちょっと本格的なdiy講座 100 自然素材主義



商品紹介 日本ケミテック



木造住宅のための断熱 気密ナビ Ykkap ディテール 設計 設計で性能を上げる



木付け用ルーフドレン ルーフドレン カネソウ株式会社 建設用金属製品の総合メーカー



其の一 Frp防水のバルコニーは どうやって造る 下地編 ちいの引き出し


0 件のコメント:
コメントを投稿